


87 177 ₽/м²
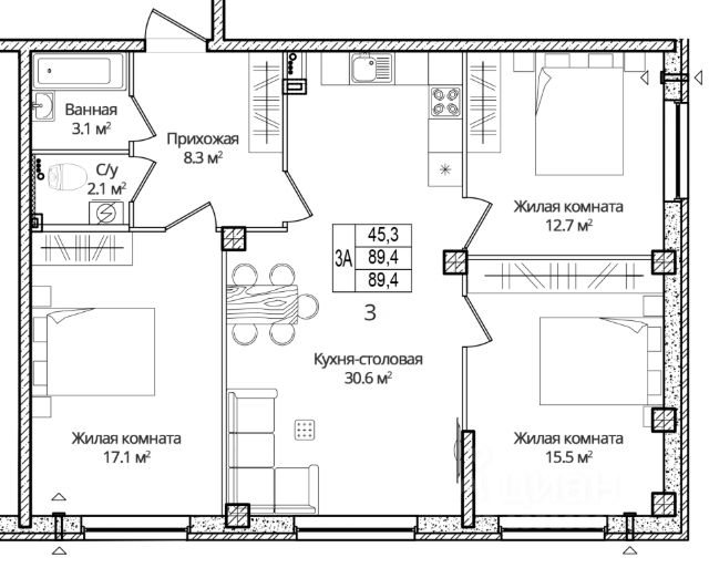
Новоселье скоро! Ключи - уже через 3 месяца. Продается 3-комнатная квартира 90 в строящемся доме по адресу ул. Героя России Досягаева, 4 в новом жилом комплексе "Семейный". Этот дом часть ЖК "Семейный" - там, где удобно жить всей семьёй А для семьи мы всегда выбираем лучшее. Здесь всё создано для того, чтобы ваши будни были спокойными, а выходные наполнены радостью и отдыхом. Какие преимущества домов в ЖК "Семейный"? 1. Надёжность и качество Застройщик с богатым опытом и десятками реализованных проектов. ЖК "Семейный" - это продолжение популярного жилого квартала "Европа", который уже стал примером удачного сочетания стиля, технологий и комфорта. 2. Жизнь в окружении удобств Во дворах находятся современные детские площадки, зоны для спорта и отдыха. Вам не нужно беспокоиться за своих детей на улице, т.к. все детские площадки изолированы от трафика машин. Наземная парковка продумана так, чтобы места хватило каждому. Она расположена по периметру всего дома. Рядом с парковкой расположены прекрасные зеленые пешеходные дорожки, где вы всей семей сможете выгуливать своих пушистиков. Внутри района уже работают супермаркеты, магазины, кафе и салоны красоты, есть детские развивающие центры и муниципальный детский сад. В шаговой доступности новая школа, крупный торговый центр с кинотеатром и множество кафе для встреч с друзьями. 3. Планировки, в которых всё продумано Каждый метр функционален: никаких "тёмных углов" и бесполезных коридоров. В каждой квартире есть удобное зонирование, чтобы у каждого члена семьи было своё пространство. Для тех, кто ценит комфорт и разумный выбор ЖК "Семейный" сочетает в себе надёжность, доступность и заботу о каждой детали, чтобы каждому члену семьи было комфортно, вплоть до любимых хвостиков. Квартира в этом доме - правильное решение для вашей семьи и комфорта ваших детей. ____________ Доступна семейная ипотека от 6%, подходит под военную ипотеку и все виды сертификатов. Вместо первоначального взноса можно использовать материнский капитал. Первоначальный взнос от 20,1% Позвоните нам, и наши менеджеры все объяснят.























































































