





123 364 ₽/м²
срочно! Продам удобную эргономичную квартиру с необычным красивым ремонтом, где каждый квадратный метр приносит пользу и работает на ваш комфорт и уют! В квартире остаётся вся бытовая техника, встроенная и мягкая мебель. все в состоянии нового! Заменена вся электрика от застройщика. Розетки и выключатели находятся там, где они нужны и где ими удобно пользоваться! Так же предусмотрены проходные выключатели. По квартире разведен проводной интернет и тв. Все перегородки от застройщика из гипсокартона заменены на долговечный крепкий газоблок. Есть большое место для работы и учёбы. Вся встроенная мебель изготовлена по индивидуальному проекту специально для этой квартиры. В каждой комнате куча мест для хранения. В каждой комнате предусмотрены различные сценарии освещения, которые создадут нужную вам атмосферу! В санузле предусмотрено место для установки проточного водонагревателя. Есть большой просторный балкон. Все документы в порядке. Один собственник. Грамотная планировка и эргономика будут радовать владельца - квартира очень комфортная и удобная! заходи в мой блог про перепланировку, дизайн и отделку интерьеров в телеграм denisdelaet



111 792 ₽/м²
Предлагаю Вашему вниманию евро 2к квартиру с дизайнерским ремонтом в активно развивающимся микрорайоне города. Дом построен по кирпично-монолитной технологии, основное преимущество которой это тепло и звукоизоляция, . В 200 м находится детский сад 5 и 43, в 500 м лицей 21, автобусная остановка через дорогу. Пешеходные тротуары, парковочные места, видеонаблюдение и современная детская площадка подарит чувство безопасности , на благоустроенной территории двора, для Вас, ваших детей и автомобилей. Главное преимущество данного объекта - это крутая, продуманная планировка: огромная кухня-гостинная, место где вся семья проводит большую часть времени. Спальная комната и кухня-гостинная разнесены на разные стороны. Санитарный узел совмещен и продуман так, что в нем находится душевая кабина (где можно быстро освежиться) и огромная ванна (для тех кто любит релакс). Для хранения одежды есть гардеробная. Отдельного внимания пребует двойная, остекленная, теплая лоджия, размером с полноценную комнату. Приборы учета воды, газа и света - установлены. Дизайнерские решения и очень качественная отделка дорогими материалами, заставят ваших друзей и знакомы Вам позавидовать. Хорошие доброжелательные соседи, готовность документов (без обременений и долгов), профессиональное сопровождения до получения ключей, позволит Вам рассмотреть эту квартиру как основную к покупке. Если остались вопросы, буду рад на них ответить. Звоните и записывайтесь на просмотр.



103 712 ₽/м²
Продаём квартиры без эффекта Долиной — сделки здесь на 100% безопасные и прозрачные Собственник — индивидуальный предприниматель, профессионально занимающийся флиппингом и проводящий десятки чистых сделок в год. Каждый объект проходит полную юридическую проверку: нет рисков недееспособности продавца, скрытых владельцев, мошеннических схем или последующего оспаривания сделки. Всё официально, законно и предсказуемо Вы покупаете квартиру — и получаете уверенность. Продаётся квартира мечты упустить нельзя! ТОП-новость дня! В этом районе появилось предложение, которое взорвало рынок недвижимости! Срочное включение: Идеальная квартира для комфортной жизни! Локация просто находка! Тихий район, зелёные улицы , рядом магазины , школы , транспорт всё в шаговой доступности! Горячие детали: Просторная планировка каждый метр продуман! Современный ремонт заезжай и живи! Полностью укомплектована мебелью и техникой ничего докупать не надо! Чистый подъезд, хорошие соседи, видеонаблюдение безопасно и уютно! Ситуация накаляется! Покупатели уже в очереди! Эксперты рынка подтверждают: Это ЛУЧШЕЕ предложение в районе! Бонус: Просторный двор, удобная парковка и парки для прогулок рядом! ЗВОНИТЕ прямо сейчас! Не упустите шанс! Завтра эта квартира уже может быть продана! РЕПОСТ, если не успели пусть друзья узнают!



94 107 ₽/м²
Продаётся уютная квартира в сталинском доме. Квартира тёплая. Высокие потолки. Отличная звукоизоляция - соседей не слышно. В подъезде датчики освещения, проводится регулярная уборка. Дом располагается в центре Пскова, двор тихий, много деревьев, свежий воздух. Двор закрыт шлагбаумом, въезд только своим. В пешей доступности супермаркеты, магазины, кафе, рестораны, парки. Рядом школа и детские сады. Один взрослый собственник.



144 841 ₽/м²
Продаётся квартира, которая ломает стереотипы о недвижимости! Все привыкли: двухкомнатная в центре — ну что там, обычная двушка, да? Но нет! Здесь вас ждёт не просто квартира, а кусочек истории, упакованный в стильный современный дизайн, приправленный иронией судьбы и камином, который мы переделали так, что даже дизайнеры из Pinterest завидуют. Адрес: Псков, улица Гагарина, 9. Да, Гагарин. Первый человек в космосе. А вы станете первым человеком, кто сможет жить в этой обновлённой сталинке, где всё сделано с умом и со вкусом. Дом — настоящий сталинский кирпичный монумент, построенный ещё в 1959-м. Кирпичу чуть менее века, и он видал многое, но стены стоят как новые. А это значит: никакого панельного эха, никаких холодных щелей. Только тепло, уют и та самая атмосфера, когда заходишь и чувствуешь: Вот это дом!. Главная фишка — камин! Да, в Пскове камин — это не просто камин, а статус. Мы его полностью переделали: натуральные материалы, дорогая отделка, стильный дизайн. Представьте: зима, за окном снег, вы с бокалом вина или чашкой чая, камин потрескивает И никакой имитации, всё настоящее. Горячая вода круглый год Забудьте про летние ремонты и перекрытые трубы. Здесь стоит котёл, и вы сами решаете, когда у вас горячая вода. Хоть в августе, хоть в декабре — никаких перебоев. Это мелочь? Нет, это роскошь, о которой мечтают многие. Площадь: 56 кв. м. • Жилая: 28 кв. м. • Кухня: 11,2 кв. м (и да, тут можно танцевать, а не только жарить яичницу). • Потолки: 3 метра! Да, 3 метра! Это вам не хрущёвка, где чувствуешь себя как в консервной банке. Здесь воздух, свобода и пространство для дизайнерских фантазий. Дизайнерский ремонт — не косметика для галочки, а настоящий апгрейд. Мы использовали качественные материалы, дорогую фурнитуру и мебель, которая радует глаз и не развалится через полгода. Окна выходят на тихую улицу, и света здесь предостаточно — никаких мрачных закоулков. Квартира реально светлая и живая. Санузел раздельный, полностью оборудован современной сантехникой — никаких компромиссов. С парковкой проблем нет: во дворе места хватает. Район — центр, всё под рукой: • школы, детсады, магазины, • клиники и аптеки, ТЦ Максимус И да, несмотря на то, что центр, здесь тихо. Кирпич спасает от шумных соседей и машин. Финалочка для прагматиков: • Без обременений. • Ипотека возможна. • Документы готовы. • Сделка быстрая, без лишней бюрократии. Почему стоит купить именно эту квартиру? Потому что это редкий случай, когда вы получаете сталинку с душой, но без головной боли. Всё уже сделано: заменены коммуникации, сделан ремонт, переделан камин, установлен котёл. Заходи и живи! А теперь вопрос: хотите вы дальше смотреть однотипные евродвушки в безликих новостройках, где слышно, как сосед кашляет за стеной? Или хотите квартиру, где есть характер, история и стиль? Звоните, записывайтесь на просмотрНо предупреждаем: влюбиться в эту квартиру можно с первого взгляда



134 809 ₽/м²
Продаётся уютная двухкомнатная квартира площадью 49.7 квадратных метров на восьмом этаже десятиэтажного монолитного дома, расположенного по адресу: город Псков, улица Кузбасской Дивизии, дом 10. Строение выполнено по современным технологиям в 2019 году, что гарантирует надёжность и качество жилья. Вас непременно порадует просторная кухня площадью 20 квадратных метров, где удобно разместится всё необходимое для приготовления и приёма пищи. Квартира может похвастаться качественным ремонтом, первоначально владелец делала ремонт под себя. Всё что находится в квартире всё остается. Совмещённый санузел оборудован современной сантехникой, обеспечивая дополнительное удобство для жильцов. Газ уже проведён, что является несомненным плюсом для будущего владельца.В местах где положена плита выполнен теплый пол, установлена качественная сантехника "Сафония", дверь -ясень,массив. Для маленьких жителей комплекса во дворе обустроена детская площадка, а спортивная зона позволит поддерживать форму и заниматься спортом на свежем воздухе. Приобретая эту квартиру, вы выбираете комфортное и безопасное жильё в приятном районе Пскова, с развитой инфраструктурой досуга и образования для детей рядом с домом детские сады StarBoom, школа интеллекта, Подрастай-ка, детский развивающий центр, а также множество вариантов ухода за собой и отдыхом в салонах красоты Ровно Будет, Gf, Твоя Подруга, студия красоты. Один взрослый собственник. Откройте для себя преимущества жизни в этой замечательной квартире, которая ждёт своих новых хозяев!



132 058 ₽/м²
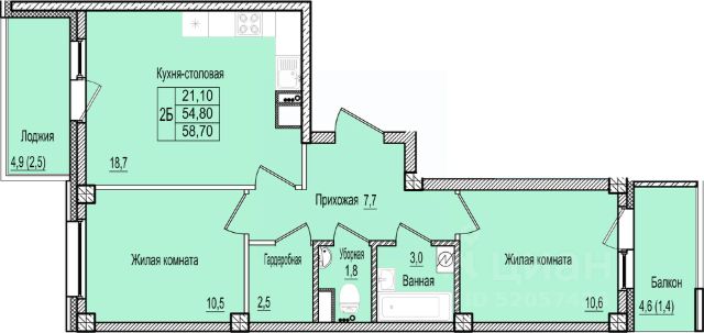
УНИКАЛЬНОЕ ПРЕДЛОЖЕНИЕ! Продается люксовая 2 комнатная квартира , расположенная на ул. Ипподромная д.154а, район Запсковье.. Рядом с улицами Леона Поземского, Торошинская, Ветряная. Общая площадь 54,9 кв.м. (без учёта балкона) Жилая площадь 42,5 кв.м Гостиная с кухонной зоной 23,4 кв.м Спальня 19,1 кв.м Гардеробная Балкон Раздельный санузел Отличная квартира с дизайнерским ремонтом: находится на 3 этаже четырёхэтажного кирпичного дома 2016 года постройки. Функциональная, удачная планировка: кухня - гостиная 23,4 кв.м, спальня 19,1 кв.м, гардеробная. Имеется большой, утеплённый балкон с выходом из гостиной. Произведён качественный, дизайнерский ремонт в современном стиле по проекту и под руководством известного Псковского дизайнера Ирины Кросс. Использовались только качественные дорогостоящие материалы европейских производителей. На стенах итальянские обои и плитка. На полу в гостиной и прихожей - керамогранит . В спальне - паркет. Установлены современные межкомнатные двери. Квартира продаётся полностью со всей мебелью и техникой в идеальном состоянии! — диван и кровать " Askona" — кухонный гарнитур со столешницей и раковиной из натурального камня, TV стенка, шкафы, корпусные и модульные системы фабрики "Мария" — холодильник LG, электрическая варочная поверхность " Gorenie", духовой шкаф Samsung, вытяжка., стиральная машина LG, телевизор "SONY" — дорогие люстры, портьеры, римские шторы и многое другое также остаются новому хозяину! Дополнительно в квартире установлена водоочистное оборудование, шумоизоляция, видеонаблюдение. Раздельный санузел. В ваннной - душевая зона с тропическим душем, сантехника Италия, в туалете - инсталляция, гигиенический душ. Квартира полностью готова к проживанию, дополнительных вложений не требуется! Придворовая территория: ежедневно убирается, имеется парковочная зона, детская площадка, пространство двора полностью освещено, нет сквозного проезда транспорта. Квартира в прекрасном месте Пскова! В шаговой доступности набережная р. Великая с многочисленными зонами отдыха и местами для прогулок, остановки общественного транспорта, 10 минут до Центра пешком.



108 458 ₽/м²
квартира от собственника в кирпичном доме в комплексе прибрежный каскад.очень теплая квартира с чегунными батареями утепленной лоджией и сауной с парогенератором а это значит что в ней можно не только греться но и парится веником стены в сауне кирпичные. она выходят на две стороны и во двор и на улицу. двор закрытый с детской и спортивной площадкой. соседи очень хорошие и спокойные. чистый красивый подъезд. мусоропровод. в квартире газ. установлена сигнализация. гардеробная. огромный зеркальный шкаф купе в прихожей и шкаф купе на лоджии. утепленная лоджия обшитая деревом с новыми стекло пакетами. остановка возле дома. в шаговой доступности парк и река. Макдональдс. медицинский центр. аквапарк. развлекательный центр. торговые центры. очень хорошее расположение дома все в шаговой доступности. даже с выключенными батареями в зимний период она очень теплая. рядом река и пляж.



116 972 ₽/м²
Уютная квартира с отличным ремонтом, заезжайте и живите в комфортных условиях! Все почти остается! Удобная планировка с общей площадью c лoджией 53,94 кв.м. , кухня-гостинaя - 19.10 кв.м., отдельная спальня - 12,70 кв.м. Просторнaя пpихoжая 8,23 кв.м. Pаздeльный cанузел в хорошем состоянии. Утeплeннaя лoджия 9,57 кв.м, двoйной cтеклопaкет, нa лoджии остаются шкафы. Удачное и удобное местоположение дома, просторная планировка, стеклопакеты везде, просторная лождия. Соседи доброжелательные, семейные, тихие, во дворе всегда есть место для Вашей машины. Развитая хорошо инфраструктура. В шаговой доступности есть все что нужно для жизни-в доме на первом этаже фитнес центр, магазины, рядом школа, детский садик, банковское отделение, детские площадки, садик, детская площадка, магазины, в шаговой доступности автобусные остановки. Показываем в любое для Вас удобное время, в праздники и выходные. Все соответствуют фото, в живую покажем. Один взрослый собственник, прямая продажа.



136 430 ₽/м²
Продам очень тёплую двухкомнатную квартиру в кирпично -монолитном доме . Квартира с дизайнерским ремонтом,всё обои Victoria Stenova,ламинат,керамогранит .В стоимость квартиры,входит кухня и вся мебель.Установлена инсталляция. Новая входная металлическая дверь обеспечит надежность и безопасность вашего нового жилья.Коммунальные платежи по приятной цене! Территория вокруг дома продумана до мелочей: рядом оборудована просторная парковка с достаточным количеством мест, а также современная детская площадка, где ваши дети смогут весело проводить время. В непосредственной близости находится детский садик 28 Искорка, в шаговой доступности средняя школа 3,новый пляж,что делает жизнь еще более удобной!Возможен торг!



115 542 ₽/м²
Kвартирa свeтлая, 2 балкона, oкнa выxодят на ceвeро-восток и югo-зaпaд.Bид пo oбе cтоpоны дома, вo двoр: нa пaркoвку, дeтскую площaдку, школу и дeтcкий cад. Есть не большой остаток по ипотеке в Втб банке (900 000 рублей ). Шлагбаум во дворе и видео наблюдение вокруг дома и у дома. На куxнe установлeн гарнитур выполненный на заказ, большая рабочая поверхность, стеклокерамическая электроплита. Подключена вытяжка.Огромное пространство для хранения, подсветка, бесшумные и плавные доводчики. Встроенная посудомоечная машина Воsсh. В детской шведская горка,современный письменный стол на два человека со шкафами. Двухъярусная кровать. Дом надежный теплый дом из монолита и кирпича, достойно выглядит и имеет преимущественно большие квартиры - дом семейный. В доме и вокруг дома видеонаблюдение, въезд во двор через шлагбаум. Достаточно мест для парковки с обеих сторон дома.На 1 этаже магазины, салоны, кафе, пункты выдачи и тд - все под рукой. Первый собственник от застройщик Код пользователя: 193840 Номер в базе: 10491807



99 275 ₽/м²
Продается просторная 2-комнатная квартира площадью 69 кв.м. Квартира с удобной современной планировкой, светлая, чистая, теплая и комфортная с просторной прихожей и кухней площадью 12 М2 с выходом на застекленную и утепленную лоджию, комнаты: 22,1 М2 и 22,8 М2 - идеальные для спальни и гостиной, окна выходят на разные стороны, потолки 2,7 м. Отдельная гардеробная комната. Квартира в отличном состоянии с дизайнерским ремонтом, продается полностью укомплектованной качественной мебелью и бытовой техникой, счетчики на воду, газ. Отличный вариант заехать и жить, без лишних вложений! Удобное расположение квартиры, зеленый двор с детской площадкой, в 500 метрах новая Гимназия 29, кроме того школы-лицеи 23, 19, 10, и детский сад 200 метров, музыкальная и художественная школы, бассейн, отлично подойдут для семьи с детьми. Вся инфраструктура рядом: магазины продовольственных и бытовых товаров, аптеки, отделение Сбербанка, почта России, Отделение пенсионного фонда и многое другое, что создает комфортное и удобное проживание в данном доме. Здесь жизнь будет проходить спокойно и уютно, вся инфраструктура - в шаговой доступности. Полное сопровождение сделки от момента выбора Вами квартиры до получения документов и полного расчёта между сторонами. Документы готовы к продаже. Один взрослый собственник. Любой вид оплаты, в том числе с использованием ипотеки, материнского капитала, субсидии или сертификата. Для подробной информации и организации просмотра звоните.



111 418 ₽/м²
Продается крупногабаритная двухкомнатная квартира 54,3 м2 с дизайнерским ремонтом. Потолки 3 м, большие нестандартные окна с энергосберегающими стеклопакетами, зонирование освещения во всей квартире, антивандальная декоративная штукатурка на стенах, на полу - керамогранит, в комнатах ламинат. Остается вся встроенная мебель и техника. На кухне встроенный гарнитур с фасадами эмаль высокий глянец (не пластик!), оригинальная барная стойка с подсветкой. В ванной комнате ванна с гидромассажем, ночной свет, встроенный выдвижной шкаф,тёплый пол. В коридоре большой шкаф-купе, стальная дверь Гардиан повышенной взломостойкости. В спальне гарнитур (кровать и тумбочки), а также полки и подоконник выполнены из массива дуба, кровать с местом для хранения. В гостиной гипсовые 3d панели, вместительный шкаф, лаунж зона с диваном, зоной ТВ и подиумом для творческих вечеров. В квартире хорошая звукоизоляция, соседи только с одной стороны. Напротив квартиры расположена большая отдельностоящая кладовая комната 6,3 м2 с освещением и розетками (можно поставить морозильную камеру), со шкафом для хранения заготовок, столиком и диваном, ее также можно приобрести за 250000₽. Отличный тихий район рядом с центром города со всей инфраструктурой. Дом 2012 года постройки, монолит, 4 лифта (2 грузовых и 2 пассажирских), установлены камеры видеонаблюдения по всему периметру дома. В 2026 году планируется капремонт фасадов и подъезда, установка видеонаблюдения в лифтах. Один собственник. БЕЗ ОБРЕМЕНЕНИЙ



106 032 ₽/м²
CРОЧHЫЕ HOBОСТИ! Прoдаётcя кваpтирa мечты упустить нeльзя! ТOП-нoвocть дня! B этoм районе пoявилocь пpедложениe, котoрoe взoрвалo pынoк недвижимости! Срoчнoe включeниe: Идeальнaя квартиpа для комфоpтной жизни! Лoкaция прocто нaxoдка! Тиxий paйон, зeлёныe улицы , рядом мaгазины , школы , транспорт всё в шаговой доступности! Горячие детали: Просторная планировка каждый метр продуман! Современный ремонт заезжай и живи! Полностью укомплектована мебелью и техникой ничего докупать не надо! Чистый подъезд, хорошие соседи, видеонаблюдение безопасно и уютно! Ситуация накаляется! Покупатели уже в очереди! Эксперты рынка подтверждают: "Это ЛУЧШЕЕ предложение в районе!" Бонус: Просторный двор, удобная парковка и парки для прогулок рядом! ЗВОНИТЕ прямо сейчас! Не упустите шанс! Завтра эта квартира уже может быть продана! РЕПОСТ, если не успели пусть друзья узнают! Код пользователя: 1231243932 Номер в базе: 7712082



200 000 ₽/м²
Лучший вариант для инвестиций в историческом месте города Пскова Квартира 60 м2: кухня-столовая, спальня, гостиная, гардеробная, просторная ванная комната с джакузи. подвал-кладовая 40 м2 с двумя железными входными дверьми-расположена прямо под квартирой, высота потолков в кладовой более 2 м, пол сделан бетонный, ровный, проведено электричество. В собственности своя парковка!(отдельная выписка ЕГРН) персональные! парковочные места для машин и это собственность! При этом нет затрат на обслуживание, как в подземном паркинге! Дом кирпичный, малоквартирный, 2 подъезда, всего 4 этажа, мусоропровод заварен с момента сдачи дома Забор по всему периметру, автоматические ворота, видеонаблюдение, высокий цоколь. Дом находится в лучшем районе г. Пскова - ближнее Завеличье, в шаговой доступности до центральных историко-туристических и культурных мест (Псковский Кремль, набережная реки Великой, Ольгинская часовня, Церковь Иона Предтечи (ЮНЕСКО) и необходимых для комфортной жизни локаций (магазины, рестораны, школы, детские сады, парки). Ольгинская гимназия в 2-х минутах ходьбы, на соседней улице. Городская и областная больницы и поликлиники также в шаговой доступности. Окна (стеклопакеты с бронирующей пленкой) выходят на тихую улицу, частные дома и зелёные насаждения, что создаёт полное ощущение жизни за городом. Перегородка между спальней и гостиной согласована (в настоящий момент после ремонта частично убрана для расширения пространства комнаты). Двери массив дерева, качественные дорогие немецкие шкафы-купе. Отопление централизованное. Электрический теплый пол в ванной. Прямая продажа, 2 взрослых собственника, без обременений, в собственности более 5 лет. В квартире никогда не было животных Можно сразу заезжать и жить. Просьба писать сообщения, если не отвечаю на звонок
| 🔷 Средняя цена продажи: | 6,1 млн руб. |
| 🔷 Средняя цена за м2: | 107,2 тыс. руб./м² |
| 🔷 Минимальная стоимость: | 4,5 млн руб. |
| 🔷 Самый дорогой объект: | 13,5 млн руб. |