158 000 ₽/м²
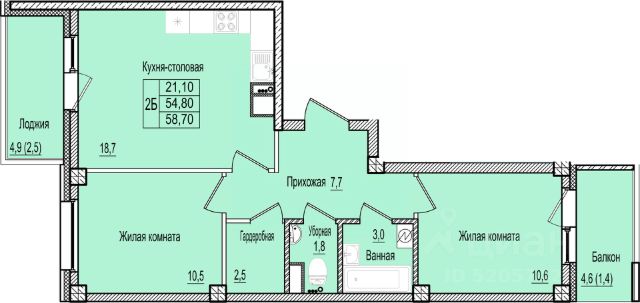
Продаётся 1-комнатная квартира в строящемся доме (Пароменская,28), срок сдачи: II-кв. 2029, общей площадью 51.7 кв.м., на 2 этаже. Новый жилой комплекс "Флагман" от застройщика "ГК Строим в Пскове" расположен по адресу Россия, Псков, Пароменская улица.










































































