Мы используем куки-файлы. Соглашение об использовании
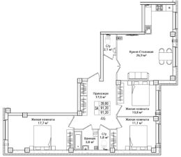
Общая площадь91,2 м²
Жилая площадь39,6 м²
Этаж2 из 10
Год сдачи2027
ДомНе сдан
ОтделкаНет информации
Продается 3-комнатная квартира, 91.20 кв. м, по адресу Россия, Псковская область, г. Псков, Д.Яковлева, д.3, 3. Этаж 2/10. Квaртиpa в новом кирпичнo-мoнолитном дoме ЖК "ТЕТРИС" ул. Д. Яковлева дом 3 Застройщик — ООО СЗ "Рмстрой" Объект возводится надежным генеральным подрядчиком -ООО "Псковская реставрационная мастерская 1" 100% гарантия юридической чистоты. Cдача - декабрь 2027г. Место: Жилой дом располагается в самом популярном и развитом районе Пскова "Завеличье", всё в пешей доступности: - Школа - Детский сад - ТЦ "Фьорд Плаза", "Лента", "Лемана про" - Спортивный комплекс "Ледовый дворец" Отличительные особенности: - Авторский дизайн входных групп и придомовой территории; - Видеонаблюдение и контроль доступа; - Горизонтальная разводка отопления с индивидуальным прибором учета и регулировкой в каждой квартире. - Высококачественные окна и входные двери; - Возможно выполнение отделки "Под ключ" по фиксированной цене с гарантией Застройщика (в т.ч. с включением в ипотеку); - Ваши деньги в полной безопасности- оформление в строгом соответствии с ФЗ- 214, через эскроу-счета, никаких серых схем! - Помощь в одобрении ипотеки Работаем: -Ипотека (любая) -Сертификаты. Мы всегда готовы обсудить индивидуальные условия. Заходите к нам в центральный офис продаж по адресу: г. Псков, ул. Линейная, д. 3. Звоните, пишите, если не ответили сразу- обязательно Вам перезвоним. Вышлем фото и видео, проведем дистанционное оформление сделки. Полное сопровождение Застройщика, все хлопоты берем на себя!

О квартире

Тип жилья

Новостройка

Общая площадь

91,2 м²

Жилая площадь

39,6 м²

Высота потолков

2,5 м

Отделка

Нет информации

О доме

Пандус

Есть

Понравилась квартира — узнайте о ней больше

Застройщик ответит на все вопросы

Похоже на то, что вы ищете?

Акции в ЖК «Тетрис»

Узнайте про персональные условия и дополнительные скидки при покупке квартиры у застройщика

Материнский капитал

Военная ипотека

Ипотечный калькулятор
  • Базовая
  • Семейная
  • ИТ-ипотека
  • 20%
  • 30%
  • 40%
  • 50%
лет
  • 10 лет
  • 20 лет
  • 30 лет
Загружаем предложения от застройщика и банков

Расположение

Корпус проверен наш.дом.рф
Обновлено 12 мая 2026
  • Нет в реестре проблемных объектов
  • Застройщик не банкрот
  • Есть эскроу счёт
  • Актуальные фото стройки

Ещё квартиры в жилом комплексе

84 квартиры в продаже · Сдача в 4 кв. 2027
Агентство недвижимости
Реставрационная мастерская
  • 8 лет 7 месяцев на Циане
  • 8 664 000 ₽
    Цена за метр
    95 000 ₽/м²
    Условия сделки
    свободная продажа
    Агентство недвижимости
    Реставрационная мастерская