Мы используем куки-файлы. Соглашение об использовании
Аукцион

Продается здание, 200,4 м²

Площадь200,4 м²
Этажность1
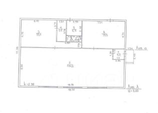
АО "ЖТК" предлагает к продаже отдельно стоящее здание магазина 52 общей площадью 200, 4 кв. м и земельный участок площадью 347 кв. м. Кадастровые 60:25:0070324:7 и 60:25:0070324:2. Одноэтажное здание. Год постройки 1989. Высота потолка 3, 2 м. Фундамент кирпичный. Стены щитовые, облицованные кирпичом. Перегородки и перекрытия деревянные. Крыша шифер. Полы бетонные, плитка. Проемы оконные деревянные, дверные входные металлические. Внутренняя отделка окраска, требует косметического ремонта. Коммуникации: водоснабжение, канализация и отопление отсутствуют; электроснабжение законсервировано. Объект находится в окружении жилого частного сектора. В 97 м от объекта остановка общественного транспорта. Транспортная доступность удобная, подъездные пути грунтовая дорога. По вопросу осмотра объекта необходимо обратиться по телефону, указанному в объявлении. Просьба звонить в рабочие дни с 9:00 до 18:00 часов. Продажа объектов осуществляется на аукционе в электронной форме. Размер обеспечительного платежа составляет 1 201 478, 20 руб. с учетом НДС. Дата проведения аукциона: 9 сентября 2025 года. Дата окончания приема заявок: 3 сентября 2025 года. Место и форма проведения аукциона: электронная торговая площадка РТС-Тендер - Для регистрации на сайте РТС-Тендер необходим электронный ключ. Номер процедуры на сайте РТС-Тендер: 215722. По вопросам предоставления дополнительной информации, а также организации осмотра, Вы можете обратиться по телефону, указанному в разделе "Принять участие в торгах".
АукционОбъект реализуется посредством электронных торгов. Конечную информацию об оплате, дополнительных платежах и условия заключения договора смотрите в документах извещения к лоту, на сайте электронной торговой площадки.
lock

Войдите или зарегистрируйтесь
для просмотра информации

Просматривайте условия сделки и всю информацию об объекте
Сохраняйте фильтры в поиске и не вводите заново
Доступ к избранному с любого устройства
Неограниченное добавление в избранное
  • Инфраструктура
  • Похожие рядом
Естественная вентиляция
Помощь надёжных риелторов
Риелтор партнёр Циан поможет купить или продать любую недвижимость
Начальная цена, аукцион
12 014 782 ₽
160 852 $
137 167
Цена за метр
59 955 ₽
Налог
НДС включен: 2 166 600 ₽
Агентство недвижимости
Документы проверены