


92 770 ₽/м²
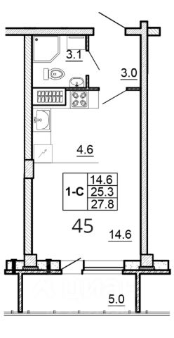
Продается 1-комнатная квартира-студия 291 в готовой новостройке на ул. Юности, 32 (1 этап строительства). Дом сдан! Юности, 32 это дом в ЖК "СМАРТ-квартал", где все квартиры умные. Название квартала говорит само за себя - здесь продуманы и планировки, и окружение, чтобы жить было удобно каждый день. Квартиры спроектированы так, чтобы каждый метр работал на вас: 1. Изолированные комнаты дают личное пространство каждому члену семьи. 2. Кухни правильной формы легко зонировать: под гарнитуры, обеденную группу или уютное место для встреч. 3. Раздельные санузлы в большинстве планировок. 4. Лоджии - дополнительное пространство для хранения, отдыха или кабинета. 5. Геометрия помещений удобна для расстановки мебели - ни одного бесполезного метра. Район сочетает развитую инфраструктуру и домашний уют: - школа и детский сад рядом, - магазины, гипермаркет Лента и торговые центры в шаговой доступности, - удобное транспортное сообщение во все части города. СМАРТ - это квартиры, которые подстраиваются под вас, а не наоборот. Если у вас есть ребёнок до 6 лет или двое несовершеннолетних, то вам доступна семейная ипотека от 6 %. Подойдёт маткапитал, военная ипотека, сертификаты переселения. Позвоните нам, и наши менеджеры всё объяснят. Продам квартиру-студию до 7 млн. рублей в Пскове.

























































































