


87 000 ₽/м²
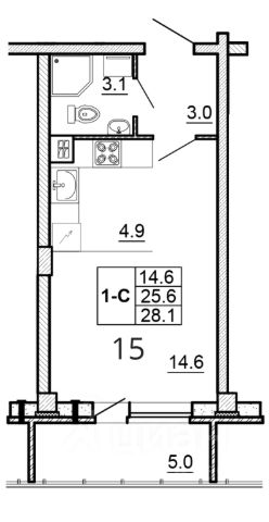
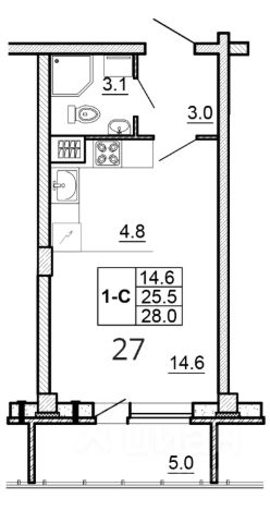
Продается 3-комнатная квартира, 86.10 кв. м, по адресу Россия, Псковская область, г. Псков, ул. Алёхина, 14. Этаж 16/16. Рассрочка без процентов и переплат: - Первый взнос всего 80 000 т.р. - остальная сумма — ровно через 6 месяцев Данная акция совместима с последующей ипотекой! Квартира в кирпично-монолитном доме ЖК "Сити" от надежного Псковского застройщика ГК "Реставрационная мастерская"! (дата основания 1946 год) Место: Дом располагается в благоустроенном районе города Пскова. В шаговой доступности есть все: - общеобразовательная школа (во дворе дома); - 2 детских сада ; - магазины и пункты выдачи В настоящее время район продолжает активно развиваться, Дом удачно территориально расположен, рядом Река Великая, зоны отдыха на природе, нет автомобильных пробок, которые свойственны многим районам города. Наши стандарты: - Высота потолков "в чистоте" 2,70 м. - Контроль доступа и видеонаблюдение. - Качественные окна и входные металлические двери. - Авторский дизайн мест общего пользования. - Территория полностью благоустроена, большая детская игровая зона на травмо-безопасном покрытии. - Возможно выполнение отделки "Под ключ" по фиксированной цена с гарантией Застройщика (в т.ч. с включением в ипотеку); - Ваши деньги в полной безопасности- оформление в строгом соответствии с ФЗ- 214, через эскроу-счета, никаких серых схем! -Помощь в одобрении ипотеки Работаем: - Ипотека (любая) - Рассрочка - Сертификаты. Квартира продается надежным Застройщиком, - ГК "Реставрационная мастерская", 100% гарантия юридической чистоты. Мы всегда готовы обсудить индивидуальные условия. Заходите к нам в центральный офис продаж по адресу: г. Псков, ул. Линейная, д. 3, звоните, пишите, если не ответили сразу- обязательно Вам перезвоним. Вышлем фото и видео, проведем онлайн показ и дистанционное оформление сделки. На объекте работает офис продаж (предварительная запись) Полное сопровождение Застройщика, все хлопоты берем на себя!







































































