27 000 ₽/м²
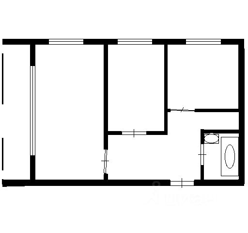
Продается уютная 2-комнатная квартира новой планировки в жилой и динамично развивающейся деревне ПОЛОНОЕ, очень развита инфраструктура (отделение почты, Сбербанк, магазины, школа, детский сад, ФАП, действующая церковь). Общая площадь составляет 50 кв. м, из которых 29 кв. м — жилая. Квартира находится на 1-м этаже 5-этажного панельного дома, построенного в 1988 году. Высота потолков — 2,52 метра, что создает ощущение простора. В квартире сделан косметический ремонт, а значит, она готова к заселению. Просторная гостиная и спальня позволяют удобно разместить всю необходимую мебель. Кухня площадью 8,5 кв. м функциональна и удобна для приготовления пищи. Санузел раздельный, что удобно для современной семьи. Из окон открывается вид во двор, поэтому в квартире всегда тихо и спокойно. Лоджия является приятным дополнением, где можно наслаждаться свежим воздухом. Дом в хорошем состоянии, с наземной парковкой, поэтому можно не переживать о том, где оставить автомобиль. Рядом с домом есть все необходимое для комфортной жизни: школы, детские сады, клиники и магазины. Это делает район идеальным для семей с детьми. Хорошая транспортная доступность позволяет быстро добраться до любой точки города. Квартира продается без обременений, все документы готовы к сделке. Возможна покупка в ипотеку, что делает этот вариант еще более доступным. Не упустите шанс стать владельцем этой замечательной квартиры! Записывайтесь на просмотр и убедитесь в ее достоинствах лично. Мы ждем вас! Так же БОНУСОМ к квартире мы передаем земельный участолк с хозяйственной постройкой.













































































